Gizli kanat & Bonded kanat
70 mm’lik kasa kalınlığı
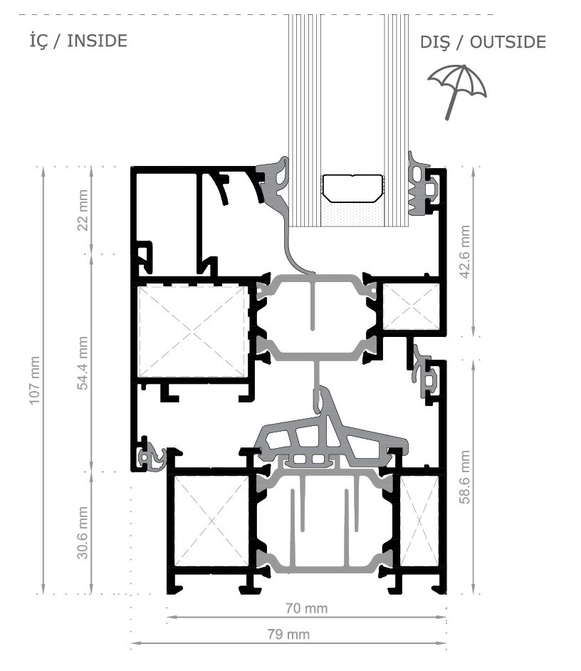
Yüksek Performansın Sembolü: ICON 70
ICON 70 sistemleri, 70 mm’lik kasa kalınlığı ile, güç, güvenlik, sürdürülebilirlik ve estetikliği birleştiren yeni nesil ve yüksek performanslı bir pencere ve kapı sistemidir.
ICON 70 tek bir sistemde çok çeşitli fonksiyonel, mimari ve tasarım gereksinimleri için verimli çözümleri bir araya getirir. Yüksek performans ve birinci sınıf alüminyum mimarisi gerektiren projeler için ideal çözümdür.
Gizli kanat & Bonded kanat versiyonları da bu sistem için mümkündür.
ICON 70
Teknik Özellikler
| Sistemin Görünür Genişliği | Kasa | 48-80 mm |
| Kanat | 42-60 mm | |
| Sistemin Kasa Derinliği | 70 mm | |
| Sistemin Kanat Derinliği | 79 mm | |
| Cam Kalınlığı | Kasa | 50 mm’e kadar |
| Kanat | 60 mm’e kadar | |
| Isı Yalıtımı | Kasa | 34 mm (Polyamid) |
| Kanat | 30 mm (Polyamid) | |
Performans Değerleri
| Performans Kriteri | Test Standartları | Sınıflandırma |
| Hava Geçirimsizlik | TS EN 12207 | Class 4 – 600 Pa |
| Su Sızdırmazlık | TS EN 12208 | E 900 – 900 Pa |
| Rüzgar Yükü Dayanımı | TS EN 12210 | C1400 – 1400 Pa |
| Güvenlik Yüküne Dayanım | TS EN 12210 | 2100 Pa |
| Termal Isı Yalıtımı | EN 10.077-2 | Npa |
| Akustik Performans Değeri | EN 717-1 | Npa |
| Hırsızlığa Karşı Dayanım | TS EN 1627-1630 |
Isı Grafiği
Sistem Opsiyonları
Kalite Belgeleri & Teknik Dökümanlar
- Sertifikalar
- EPD Belgeleri
- Kalite Belgeleri
- Çevre & İş Sağlığı ve Güvenliğimiz
- Yerli Malı Belgesi
SARAY Alüminyum, profil ve panel ürünlerine EN 15804 Avrupa normu uyumlu EPD belgelerini alarak sektöründe bir ilke imza attı. EPD belgeleri LEED, BREEAM, DGNBve ÇEDBİK gibi birçok yeşil bina değerlendirme ve sertifika sistemleri tarafından talep edilmektedir.
SARAY Döküm ve Madeni Aksam Sanayi Turizm A.Ş. yapı sektöründeki yenilikleri ile bir ilke daha imza atıyor. Saray Alüminyum, bugüne kadar sektördeki üstün kalite ve standart belgelerine, The Interntional EPD System aracılığı ile uluslar arası kapsamda yayınlanan ve tüm pazarlarda geçerli olan PVC ve Alüminyum profil ve Alüminyum kompozit panel ürünleri için almaya hak kazandığı EN 15804 Avrupa normu uyumlu “Çevresel Ürün Beyanı – Environmental Product Declaration (EPD)” belgelerini ekledi.
Türkiye’de ilk kez A2 sınıfı yanmaz kompozit paneller için EN 15804 – Sürdürülebilir Yapı Malzemeleri normu uyumlu EPD belgesi alan Saray, Türkiye’nin en büyük ilk 200 sanayi firması arasında olması ve sektörün ön safındaki konumu nedeniyle çevreye duyarlı sorumluluk anlayışı ile Avrupa’da ve Türkiye’de farkındalık yaratıyor.
İstanbul ve Çerkezköy’deki tesislerinde toplam 90.000 metrekare kapalı alanda üretim yapan Saray’ın, A2, B1 ve B2 yanmazlık sınıfı Alüminyum Kompozit Paneller (EPD Kayıt No:S-P-00834), Alüminyum Ekstrüzyon Profil (EPD Kayıt No:S-P-00833), ve PVC Profil (EPD Kayıt No:S-P-00832) ürünlerine alınan EPD belgeleri Metsims Sustainability Consulting firması danışmanlığında başarı ile tamamlandı.
TS standartlarına göre A2, B1 ve B2 yanmazlık sınıfında her biri inovatif birer ürün olan Saray Alüminyum Kompozit Panelleri, Alüminyum Ekstrüzyon Profilleri ve PVC Kapı & Pencere Profilleri yüksek kalitesi, kalite sertifikaları ve EPD belgeleri ile inşaat sektöründen en fazla tercih edilen markalar arasında yerini alıyor.
EPD’ler, ISO 14025’e göre tanımlanan, bir ürünün çevre performansını ISO 14040/44 LCA standardı kapsamında belirtilmiş çevresel etki parametreler bazında önceden belirlenmiş kategorilere göre (hammadde eldesi, enerji kullanımı ve verimliliği; malzeme ve kimyasal madde içeriği; hava, su ve toprağa verilen emisyonlar; atık oluşumu) nicel olarak değerlendiren ve beyan eden belgelerdir. LCA kapsamında ekonomik faaliyetlerin ekolojik ayak izini ve üretim sürecinde meydana gelen çeşitli emisyon ve atık değerlerini dikkate alan bu beyan yöntemi, uluslararası uzmanlar tarafından bağımsız olarak doğrulanan ve dünya çapında geçerli olan belgelerdir. Tip III türü çevresel etiketleme olarak bilinen EPD Belgeleri, çevresel etki değerlendirilmesi yapılmış yapı ürünlerinin yaygınlaştırılmasını sağlarken LEED, BREEAM, DGNBve ÇEDBİK gibi birçok yeşil bina değerlendirme ve sertifika sistemleri tarafından talep edilmektedirler.
Firmamızda, ISO 9001:2000 standardının gereklerini yerine getiren ve diğer yönetim fonksiyonları ile birlikte planlanan ve geliştirilen müşteri ihtiyaçlarını yerine getiren etkili ve yeterli bir Kalite Sistemi kurulmuş olup ISO 9001 Kalite Güvence Belgemiz bulunmaktadır. Böylece firmamız,;
- Bütün faaliyetlerini müşterilerinin memnuniyeti için yoğunlaştırmayı,
- Müşterilerine sağladığı ürünlerin ve hizmetlerin kalitesini sürekli olarak geliştirmeyi,
- Ürünleri zamanında teslim etmeyi,
- İsraf ve ziyanı ortadan kaldırarak ürünlerini ve hizmetlerini, en düşük maliyetle üretmeyi,
- Müşterilerinin ihtiyaçlarını karşılayacak nitelikte ürün üretmeyi esas olarak benimsemiştir.
Seltoy Ltd Şti bayisi olduğu Saraygrup, çevresel sorumluluklarının bilincinde; ürünün gerçekleştirilmesinden sevkiyata kadar geçen tüm aşamalarda, faaliyetlerinin çevre boyut ve etkilerini belirlemek ve bu boyutların ortaya çıkmasını önlemek amacıyla yöntemler uygulamaktadır. Saraygrup tüm faaliyetlerinin çevre kirliliğine neden olmaksızın yürütülmesi konusunda hassasiyet göstermektedir. Bu amaçla;
- Çevre ile ilgili tüm mevzuatlara uymayı,
- Doğal kaynakları optimum düzeyde kullanmayı,
- Kullanılan hammadde ve yardımcı maddelerde çevre kriterlerine uymayı,
- Kirliliğin önlenmesini, atıkların azaltılmasını ve maksimum geri dönüşümünü sağlamayı,
- Çalışanlarını çevre konusunda vereceği eğitimlerle bilinçlendirmeyi,
- Yeni yatırımlarda çevre faktörünü göz önünde bulundurmayı, ilke edinmiştir.
Alüminyum Pencere ve Kapı Sistemleri Hakkında
- Alüminyum Doğrama Bileşenleri
- Alüminyum Ekstrüzyon Profil Özellikleri
- Neden Alüminyum Doğrama
- Alüminyum Doğrama Özellikleri
- Alüminyum Doğrama Montaj Uygulaması
Alüminyum Doğramada kullanılan malzemelerde aranan özellikler
Birincisi, pencerede kullanılan tüm malzemelerin başta alüminyum profiler ve profillerin iç ve dış ortamlar arasında ısıyı iletmesini önlemek için kullanılan plastik yalıtım profilleri olmak üzere tüm malzemelerin kalitesidir.
Alüminyum profiller
Alüminyum profil üreticisinde TS EN 12020-1 ve TS EN 12020-2 standartları ile ilgili Türk Standartlarına Uygunluk Belgesi aranmalıdır. Bu belge EN AW 6060 ve EN AW 6063 alaşım grupları için ve hassas alaşımlı alüminyum malzemeden ısıl bariyerli ve ısıl bariyersiz ekstrüzyon profiller için verilir.
TS EN 12020-1 (02.03.2010) Alüminyum ve alüminyum alaşımları – En aw- 6060 ve en aw- 6063 alaşımlarından ekstrüzyon ile imal edilmiş hassas profiller
Teknik muayene ve teslim şartları
TS EN 12020-2 (02.03.2010) Bu standard EN AW-6060 ve EN AW-6063 alaşımlarından ekstrüzyonla, termal bariyerli ve termal bariyersiz imal edilmiş hassas profillerin boyut ve şekil toleranslarını kapsar.
Alüminyum sektörüne yönelik EN 15088 standardı, yapı sektöründe kullanılacak olan alüminyum ve alüminyum alaşımları için genel zorunlulukları içerir. EN 15088 Yapı işlerinde kullanılmak üzere üretilen alüminyum ve alüminyum alaşımları (profil vb.) üretimi gerçekleştiren üreticiler içindir. Yapı Malzemeleri Yönetmeliği (CPD) uygunluğu ve neticesinde CE işareti, ürünün Avrupa ve Türkiye pazarına sunmak için 4703 sayılı kanun gereği yasal bir zorunluluktur.
Doğramalarda kullanılacak profillerin et kalınlıkları rüzgar ve taşıma yükleri açısından değerlendirilmeli ancak 1.8mm’den ince kasa, orta kayıt, adaptör ve kanat profilleri sağlıklı vida tutamayacağından tavsiye edilmez.
Doğramalarda kullanılan alüminyum profillerde 6060-T5 veya 6063-T5 (alaşım-ısıl işlem) kullanılmalıdır.
T5: Sıcak şekillendirme işleminden sonra soğutulmuş ve suni yaşlandırma yapılmış anlamındadır.
Buna göre profiller ekstrüzyon prosesinden sonra soğutulur ve ardından yapay yaşlandırma (termik) fırınlarına sokulur.
Isı yalıtımlı profillerde aranacak özellikler
Isı yalıtımlı profillerde polyamid malzemeden üretilen ve %25 cam elyaf takviyeli ısı yalıtım bariyerleri kullanılmalıdır. Türkiye piyasasında genelde sadece zorunlu kalındığında (boya fırınına girebiliyor olması sebebi ile) polyamid kullanılıyor ve daha ucuz olması sebebi ile PVC bariyer tercih ediliyor olsa da polyamid ısı bariyerleri tercih edilmelidir.
Isı yalıtım bariyeri olarak farklı materyaller kullanılmakla birlikte polyamid ısı yalıtım bariyerleri termal uzama katsayılarının alüminyum ile aynı olmasından ve mekanik değerlerinin de yüksek olmasından ötürü ısı yalıtım bariyeri olarak kullanılmaya en uygun materyaldir. Polyamid ısı yalıtım bariyerleri standart olarak %25 cam elyaf takviyelidir.
Isı yalıtım bariyerlerinin en az 18mm olması tavsiye edilir. Isı yalıtım bariyeri seçiminin ısı yalıtımını nasıl etkilediğini öğrenmek ister misiniz?
Isı yalıtımlı profillerde aranacak özellikler
Isı yalıtımlı profillerde polyamid malzemeden üretilen ve %25 cam elyaf takviyeli ısı yalıtım bariyerleri kullanılmalıdır. Türkiye piyasasında genelde sadece zorunlu kalındığında (boya fırınına girebiliyor olması sebebi ile) polyamid kullanılıyor ve daha ucuz olması sebebi ile PVC bariyer tercih ediliyor olsa da polyamid ısı bariyerleri tercih edilmelidir.
Isı yalıtım bariyeri olarak farklı materyaller kullanılmakla birlikte polyamid ısı yalıtım bariyerleri termal uzama katsayılarının alüminyum ile aynı olmasından ve mekanik değerlerinin de yüksek olmasından ötürü ısı yalıtım bariyeri olarak kullanılmaya en uygun materyaldir. Polyamid ısı yalıtım bariyerleri standart olarak %25 cam elyaf takviyelidir.
Isı yalıtım bariyerlerinin en az 18mm olması tavsiye edilir. Isı yalıtım bariyeri seçiminin ısı yalıtımını nasıl etkilediğini öğrenmek ister misiniz?
Yüzey işlemler (Eloksal, Elektrostatik Toz Boyama, Ahşap Desen Kaplama)
Mimari alüminyum pencere, kapı ve cephe sistemlerinde kullanılan profiller ham olarak üretildikten sonra isteğe göre eloksal, elektrostatik toz boyama yada ahşap desen kaplama işlemine alınırlar ve istenilen yüzey görünümünü elde ederler.
Eloksal:
TS 4922 (27.10.1986) Metalik malzemelerin yüzey işlemi- Alüminyum ve biçimlenebilir alüminyum alaşımlarının anodik oksidasyonu (eloksal), teknik özellikler
Avrupa ülkelerinde kullanılan Qualanod Kalite Belgesi aranmalıdır. Qualanod, alüminyumun sülfürik asit esaslı eloksal kaplanması (anodizasyon) için kapsamlı bir standarttır ve Türkiye’de de bir çok üretici bu belgeye sahiptir. Bu belgeye sahip üreticiler düzenli olarak denetlenirler.
Elektrostatik Toz Boyama:
Avrupa ülkelerinde kullanılan Qualicoat Kalite Belgesi aranmalıdır.
Tamamlayıcı parçalar
Menteşeler (TS 4922), EPDM fitiller ve diğer tamamlayıcı parçalar için ilgili standartlar dikkate alınmalıdır. Köşe takozu ve çavuş bağlantıların eksiksiz monte edilmiş olması gerekir.
Metaller, medeniyetin gelişmesinde önemli görev yapmaktadır. Bu gelişme sürecinde, alüminyum kadar önemli rol oynayan az sayıda metal bulunur. Alüminyum kendine has özellikleri ile, çok eski çağlardan beri bilinen, ağaç, bakır, demir ve çelik gibi birçok malzemeden daha önem kazanmış bulunmaktadır. 19. yüzyılın ikinci yarısından beri endüstriyel çapta üretilen çok genç bir metal olmasına rağmen, bugün bakır ve alaşımları, kurşun, kalay ve çinko gibi tüm demir dışı metallerin toplam kullanımından daha çok miktarda kullanılmaktadır.
Alüminyum’un genel özellikleri aşağıda özetlenmiştir :
- Alüminyum hafiftir. Aynı hacimdeki bir çelik malzemenin ağırlığının ancak üçte biri kadar ağırlıktadır.
- Alüminyum, hava şartlarına, yiyecek maddelerine ve günlük yaşamda kullanılan pek çok sıvı ve gazlara karşı dayanıklıdır.
- Alüminyum'un yansıtma kabiliyeti yüksektir. Gümüşi beyaz renginin bu özelliğe olan katkısı ile beraber gerek iç gerekse dış mimarî için cazibeli bir görünüme sahiptir. Alüminyumun bu güzel görünümü, anodik oksidasyon (eloksal), lâke maddeleri vs. gibi uygulamalar ile uzun müddet korunabilir. Hatta, birçok uygulamada tabii oksit tabakası bile yeterli olur.
- Çeşitli alüminyum alaşımlarının mukavemeti, normal yapı çeliğinin mukavemetine denk veya daha yüksektir.
- Alüminyum elastik bir malzemedir. Bu nedenle ani darbelere karşı dayanıklıdır. Ayrıca, dayanıklığı düşük sıcaklıklarda azalmaz. (Çeliklerin, düşük sıcaklıklarda ani darbelere karşı mukavemeti azalır.)
- Alüminyum, işlenmesi kolay bir metaldir. Öyle ki, kalınlığı I/100 mm. den daha ince olan folyo veya tel haline getirilebilir.
- Alüminyum ısı ve elektriği bakır kadar iyi iletir.
Bildiğiniz üzere alüminyum, ısı yalıtımı için çok da uygun bir materyal değildir. Oysa alüminyum pencerelerde kullanılan alüminyum profiller termal olarak bölümlenmiş profillerdir. Termal olarak bölümlenmiş yani ısı yalıtımlı alüminyum profillerde iç mekana ve dış mekana temas halindeki alüminyum profil parçaları plastik bariyerler aracılığı ile birbirlerinden ayrılır.
1970’lerin başında dünyada ısı yalıtımlı profiller üretilmeye başlanmış olsa da Türkiye’de ilk yıllardaki yalıtımsız ve/veya detayları, tamamlayıcıları eksik pencere uygulamaları kullanıcılarda “alüminyum ısıyı iletir”, “alüminyum pencerelerde yalıtım iyi değildir”, “alüminyum pencerelerde terleme sorunu olur” gibi yanlış algıların oluşmasına sebep olmuştur. Oysa özellikle günümüze gelindiğinde ısı yalıtımlı pencereler son derece iyi ısı yalıtım değerlerine sahiptir ve bu konuda plastik pencereleri aratmamaktadırlar.
Diğer taraftan da PVC’nin alüminyumun muadili olduğunu söyleyebilir miyiz? Alüminyum’un yerine plastik (PVC) doğrama kullanılamayacağı bir çok durum vardır. Bu açıdan alüminyumun aşağıdaki avantajları alüminyumu halen mimari projelerin vazgeçilmezi yapmaktadır:
- Alüminyum doğramalar PVC-u doğramalara göre çok daha dayanıklı, güçlü, stabil ve uzun ömürlüdür. Bir alüminyum pencerenin ömrü 40 sene olarak gösterilirken PVC-u pencerelerin 25 senede bir değiştirilmesi gerekmektedir.
- Alüminyum pencere ve kapılar, vinil (PVC-u) pencerelerin aksine düşük ve yüksek sıcaklıklarda mekanik özelliklerini korumaya devam eder.
- Alüminyum doğramalar dayanıklı olduklarından görünür genişliği daha az olan çerçeveler kullanılmasına olanak verir. Dolayısıyla günışığından azami yararlanma şansınız olur.
- Ahşap ve plastik doğramalarla sınırlı ebatlarda çözümler üretilebilirken alüminyum pencereler ile geniş açıklıklar geçebilirsiniz. Fransız balkon gibi, dükkan vitrinleri gibi kat boyunca geçilen açıklıklarda, rüzgar yüküne dayanımın çok önemli olduğu yüksek binalarda, yüksek katlarda alüminyum doğramalar güvenle kullanılabilir.
- Rüzgar yüklerine karşı gösterdiği direnç kuvvetlidir, atalet momenti yüksek sistemlerdir.
- %100 geri dönüşümlü, doğal ve çevrecidir. Geri dönüşümünde %95 enerji tasarrufu sağlanır. Kurşun, civa vb. zehirli ve kansorojen maddeler içermez.
- Yangında zehirli gaz salınımına yol açmaz. Alüminyum pencereler yangın yönetmeliğine uygundur. Bayındırlık Bakanlığı’nın hastane ve okul projeleri başta olmak üzere şartnamelerinde alüminyum doğrama kullanılması şartı bulunmaktadır. Isıya karşı dayanıklılığın yanı sıra, kıvılcım ve zehirli gaz çıkarmaması da yalıtımlı alüminyum pencerelerin önemli bir özelliğidir. PVC-u pencere ise yangın durumunda hayati tehlike arz eden asit tuz gazlar ve diyoksin gazlar salar.
- Alüminyum'un doğal korozyon önleyici kaplaması bulunur. Ayrıca eloksal (kontrollü oksitlendirme) ile oksitlenmesi (korozyon) engellenir. Hava koşullarına oldukça dayanıklıdır.
- Temizliği ve bakımı ahşaba ve vinil (PVC-u) pencerelere göre son derece kolaydır. Vinil pencerelerin ilk günkü görüntülerine kavuşmaları için 6 ayda bir alkalin deterjanlarla silinmeleri gerekir. Alüminyum ise yağmurla bile temizlenir.
- Son derece iyi ısı yalıtımı sağlarlar. Uw = 1.1 W/ m2K olan bir pencere tasarlayabilirsiniz. Alüminyum pencerelerde ısı yalıtımı için ısı yalıtım bariyeri kullanılır. Pencerelerde ısı yalıtımı nasıl iyileştirilir? okuyunuz. Terleme kesinlikle yapmaz. Terleme neden olur?
- Çok çeşitli pencere stil ve pencere açılım seçenekleri vardır.
- Geniş açıklıklı sürme kapı ve pencereler imal edilmesine olanak verir.
- Metalin doğal rengi kalite hissi yaratır, projelere estetik görünüm katar. Ancak istendiğinde iç ve dış ortamlara bakan yüzeyleri ayrı yüzey kaplamaya tabi tutularak projelerde bütünlük sağlayacak şekilde kullanılması da mümkündür.
Alüminyum Doğrama sistemi ve pencere genelinde aranan özellikler
Alüminyum profillerin, ısı yalıtım bariyeri montajı yapılmış (kompozit) alüminyum profillerin, EPDM fitillerin ve diğer tüm tamamlayıcı parçaların doğru tanımlanmasından sonra bir diğer aşama da sistemde yer alan bu parçaların birbirleri ile olan ilişkisinin hangi şartları (hava geçirimsizlik, su yalıtımsızlık, rüzgar yüküne dayanım, ısı yalıtımı, gürültü önleme vb.) hangi asgari değerler baz alınarak yerine getirilmesi istendiğidir. Doğrama sistemleri önceden bu testlere tabi tutuldu ise buna göre seçilecek ve hatta bir mockup üzerinde sistemin yeterliliği uygulama aşamasında test edilecektir.
Alüminyum Doğrama Montajı aşamasında uyulması gereken kriterler
- Kanatların sarkmaması için cam takılırken takozlama prensiplerine uyulmalıdır.
- Alüminyum profillerin görünen yüzeylerinde koruyucu bantlar olmalı ve montaj sonrasına kadar korunmalıdır.
- Fitiller EPDM malzemeden olmalıdır ve köşe yerlerinde yapıştırılmalıdır. EPDM için özel tutkallar tavsiye edilir.
- Su tahliye delikleri açılmış olmalı ve kapakları takılmış olmalıdır.
- Köşe takozları alüminyum profiller ile aynı alaşımda olmalı, epoksi sürülerek yerleştirilmeli ve köşe presi ile preslenmelidir.
Pencere ve Kapı Detayları
- Detay Alüminyum Profiller
- Düz Renk Kataloğumuz
- Ahşap Desen Kataloğumuz
Detay profillerin Alüminyum kapı ve pencere sistemlerinde kullanılma zorunluluğu yoktur. Detay alüminyum profiller; Alüminyum kapı ve pencerelerin uygulanmasında olası problemleri çözmek veya nihai tüketicinin isteklerini karşılamak amacıyla Alüminyum pencere uygulayıcısı tarafından tercih edilmektedir.
Pencerenin mimari görünüşünü düzenlemek veya performansını arttırmak amaçlı kullanılabileceği gibi mevcut bir uygulama zorluğu veya probleminin çözülmesi için de kullanılabilir.
Detay profillerin farklı bir avantajı da yalnız alüminyum kapı ve pencere sistemlerinde kullanılır olmamalarıdır. İnşaat, tarım sektörü (seracılık vs), ilaç ve kimya sanayi gibi farklı sektörlerde kullanılmaktadır.
Detay profilleri; korozyona dayanıklılık, uzun ömür ve üstün yalıtım değerleri nedeni ile farklı alanlarda kullanılma kolaylığı sağlamaktadır.
Ana Profiller:
Düz Renk Ral Kartelası
| RAL 1000 | RAL 1001 | RAL 1002 | RAL 1003 | RAL 1004 |
| RAL 1005 | RAL 1006 | RAL 1007 | RAL 1011 | RAL 1012 |
| RAL 1013 | RAL 1014 | RAL 1015 | RAL 1016 | RAL 1017 |
| RAL 1018 | RAL 1019 | RAL 1020 | RAL 1021 | RAL 1023 |
| RAL 1024 | RAL 1027 | RAL 1028 | RAL 1032 | RAL 1033 |
| RAL 1034 | RAL 1037 | RAL 2000 | RAL 2001 | RAL 2002 |
| RAL 2003 | RAL 2004 | RAL 2008 | RAL 2009 | RAL 2010 |
| RAL 2011 | RAL 2012 | RAL 3000 | RAL 3001 | RAL 3002 |
| RAL 3003 | RAL 3004 | RAL 3005 | RAL 3007 | RAL 3009 |
| RAL 3011 | RAL 3012 | RAL 3013 | RAL 3014 | RAL 3015 |
| RAL 3016 | RAL 3017 | RAL 3018 | RAL 3020 | RAL 3022 |
| RAL 3027 | RAL 3031 | RAL 4001 | RAL 4002 | RAL 4003 |
| RAL 4004 | RAL 4005 | RAL 4006 | RAL 4007 | RAL 4008 |
| RAL 4009 | RAL 4010 | RAL 5000 | RAL 5001 | RAL 5002 |
| RAL 5003 | RAL 5004 | RAL 5005 | RAL 5007 | RAL 5008 |
| RAL 5009 | RAL 5010 | RAL 5011 | RAL 5012 | RAL 5013 |
| RAL 5014 | RAL 5015 | RAL 5017 | RAL 5018 | RAL 5019 |
| RAL 5020 | RAL 5021 | RAL 5022 | RAL 5023 | RAL 5024 |
| RAL 6000 | RAL 6001 | RAL 6002 | RAL 6003 | RAL 6004 |
| RAL 6005 | RAL 6006 | RAL 6007 | RAL 6008 | RAL 6009 |
| RAL 6010 | RAL 6011 | RAL 6012 | RAL 6013 | RAL 6014 |
| RAL 6015 | RAL 6016 | RAL 6017 | RAL 6018 | RAL 6019 |
| RAL 6020 | RAL 6021 | RAL 6022 | RAL 6024 | RAL 6025 |
| RAL 6026 | RAL 6027 | RAL 6028 | RAL 6029 | RAL 6032 |
| RAL 6033 | RAL 6034 | RAL 7000 | RAL 7001 | RAL 7002 |
| RAL 7003 | RAL 7004 | RAL 7005 | RAL 7006 | RAL 7008 |
| RAL 7009 | RAL 7010 | RAL 7011 | RAL 7012 | RAL 7013 |
| RAL 7015 | RAL 7016 | RAL 7021 | RAL 7022 | RAL 7023 |
| RAL 7024 | RAL 7026 | RAL 7030 | RAL 7031 | RAL 7032 |
| RAL 7033 | RAL 7034 | RAL 7035 | RAL 7036 | RAL 7037 |
| RAL 7038 | RAL 7039 | RAL 7040 | RAL 7042 | RAL 7043 |
| RAL 7044 | RAL 7045 | RAL 7046 | RAL 7047 | RAL 8000 |
| RAL 8001 | RAL 8002 | RAL 8003 | RAL 8004 | RAL 8007 |
| RAL 8008 | RAL 8011 | RAL 8012 | RAL 8014 | RAL 8015 |
| RAL 8016 | RAL 8017 | RAL 8019 | RAL 8022 | RAL 8023 |
| RAL 8024 | RAL 8025 | RAL 8028 | RAL 9001 | RAL 9002 |
| RAL 9003 | RAL 9004 | RAL 9005 | RAL 9006 | RAL 9007 |
| RAL 9010 | RAL 9011 | RAL 9016 | RAL 9017 | RAL 9018 |
Bilgisayar Ortamında görüntülenen ürünlerin Monitör ve Çevre Birimleri nedeniyle renk Farkları oluşmaktadır, daha sağlıklı renk ve desen saptamak için lütfen renk kartelası isteyiniz.
Ana Profiller:
Bilgisayar Ortamında görüntülenen ürünlerin Monitör ve Çevre Birimleri nedeniyle renk Farkları oluşmaktadır, daha sağlıklı renk ve desen saptamak için lütfen renk kartelası isteyiniz.